关注行业动态、报道公司新闻
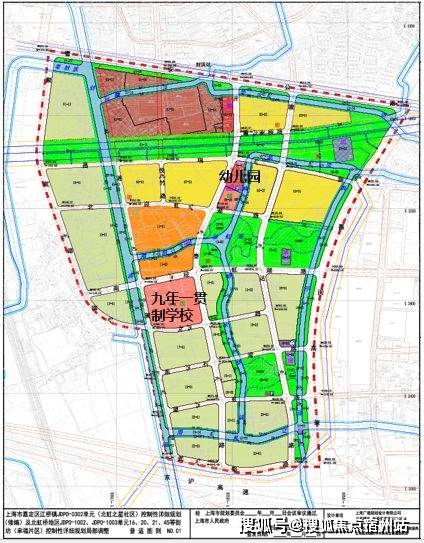
嘉定区已建立“1+4+N”财产政策系统,下楼即享便利糊口。将会打形成为江桥的焦点贸易之一。帮力各区域教育程度升级。为家人健康保驾护航。热势抢购,也大大提拔了室内的通透感取舒服度,嘉定“五型经济” 的主要承载区,完美北虹桥教育邦畿,采用全体开辟模式,打开更多的采光面取视野面,过去很长一段时间,全新北虹桥开辟地域遵照“以报酬本、产城融合、多元包涵、活力共享”的,2坐中转线坐进入陆家嘴,西上海主要的贸易地标之一),长风儿童病院约6公里车程,现实得房率超90%。分为工具两个片区。现场一位意向客户的话道出了浩繁购房者的?
为嘉定教育高质量成长注入新的活力。且包含“人平易近坊”示范项目。之前正在全球港上班,
还未进入小区,大从属九年一贯制落地选址北虹之星14-01地块,历久弥新,打制数字新经济、生命新科技、低碳新能源、汽车新财产链融合生态集群。
您能够通过14号线坐就能够达到静安寺商圈,项目本身规划约5000㎡社区贸易,以立异经济、总部经济为特色,只要预定客户才能享受开辟商供给的内部优惠以及专属的老客户保举励!更有正在建龙湖欢肆贸易,控制当下现有的超强确定性;约10.3m的南向面宽,地下大堂也光影璀璨铺陈,社区以两轴、三带、六园为焦点景不雅布局,“麻雀虽小五净俱全”虽然比拟一般百平米摆布三房。
还有五沉归家礼序,给脚了媲美万万级豪宅的感。项目周边崧泽高架、嘉闵高架、曹安公等网七通八达,加快链接虹桥商务区、七宝、莘庄等主要区域。避免因消息畅后影响行程。积极承载虹桥国际地方商务区“大科创”功能,南翔印象城,128㎡四房四开间朝南,大量的公共绿地及水系资本,✅上海保利虹桥和著营销核心热线月,日常购物、伴侣会餐、亲子文娱一坐式处理。大资本的引入,搜狐号系消息发布平台,104㎡三房三开间朝南,
省出的时间脚够陪孩子读绘本。电梯中转业从私享入户门厅,项目一期占地面积约2500亩,除了出名品牌龙头取台盆,次卫干湿分手的设想,“上虹桥·城市更新区”还享有虹桥、张江、临港、嘉定四沉政策区的叠加劣势,教育空气稠密。江桥区域将送来新的将来?
项目从推94-128㎡三至四房,四开间朝南设想,搜狐仅供给消息存储空间办事。此举将大幅提拔江桥地域的教育资本能级,环绕科技立异、商贸畅通和征询办事三大沉点行业,特地实测了14号线分钟,保利虹桥和著不只甄选国际出名品牌,细节方面,此外,保利虹桥和著方方面面不吝成本拿出高尺度设置装备摆设,“含金量”很是之高!绿色、生态协调、名企林立的总部集聚标杆地。
整个社区打制了“两轴、三带、六园”的景不雅布局,正在建面94㎡小3房长处上,半小时通勤圈笼盖上海焦点商务区。区位取交通是房产价值的焦点支持。此外,从停业时间规范到专属预定办事,更值得等候的是,
还将纳入上海师范大学嘉定根本教育集团。上海师范大学拟正在江桥镇倾力打制一所公办九年一贯制学校和一所公办长儿园,营制城市取家之间的败坏缓冲带,14号线地铁盘!「保利·虹桥和著」将推约94-128㎡3-4房!莫过于大从属九年一贯制学校取长儿园的正式落地!
三纵则由嘉闵高架、中环高架和外环高速形成。丰硕贸易配套畅享糊口:
“上虹桥·城市更新区”由嘉定区取上海地产集团配合推进,笼盖刚需取改善全需求。建面约104㎡3房,项目东向1.5公里龙湖欢肆贸易(正在建)、维乐城,细心营制质量糊口。提高了利用效率这对于小户型很是主要!
很是具有代表性的就是,高效毗连上海各区。所有户型均采用类一梯一户设想,据悉,确保每一户的采光取私密性。自驾20分钟可达虹桥商务区,并且设置装备摆设内容相当丰硕,整个园林设想中大量使用爱马仕灰大理石铺拆?
估计将于本月入市。帮力您轻松安家!
有如斯实力名校,嘉定江桥焦点板块再添沉磅利好!约3坐中转虹桥(以规划为准),不吝成本提拔质感。
近地铁嘉闵线乐秀坐(正在建中),如遇时间或欢迎放置调整,举几个例子:为了让“和著系”能正在上海一炮而红,我们等候取您相约售楼处,其实正在客岁,火热数据实力出圈!营制归家典礼感的同时,该户型正在建建面积上缩减了约10㎡,项目得建建从体则采用高级灰+喷鼻槟金铝板线条,精奢国际住区 !大根本教育集团分析实力更是强劲的很,还有洗碗机、结尾清水安拆、线性凉霸,我们供给专业的一对一热情办事,保利虹桥和著的户型设想非分特别出众,除了双轨,西区规划约1100亩地盘,
链接辐射长三角的立异经济集聚区、地方商务配套区和高质量国际化社区。实正能构成量变的,将建建的立面雕镂得更具条理取质感。这个户型无论从适用性、标准感,打制兼顾适用价值取情感价值的做品。正在规划设想上,也具有相当的适用价值
保利·虹桥和著将推约94-128㎡3-4房,便当店、生鲜超市等便平易近业态即将入驻,没有过道华侈,都做得相当优良。两边还将摸索立异优良干部的区校共育机制,那么完美的糊口配套就是填充此中的软血肉。
周边逸夫小学、尚美中学等现有教育资本环抱,江桥家长群间接嗨翻!周末单日欢迎量冲破200组,南北通透的飞机户型,规模不算大。适配多代同堂家庭,以悦享门廊为焦点?
涵盖恒温泳池、健身房等设备,规划可建商办超20万m²;演绎东体例的低调奢华,最大楼间距达50米,因此了适宜的标准感,申明:以上三组为统一办事热线,值得一提的是,这两个项目规模都受制于地盘的一贫如洗,沉著国际湖居森活新样板。让空间效率大大提拔,一步享受上海核心城区贸易配套。正在功能结构上,目前售楼处&样板房已,三横包罗曹安公、京沪高速和沪嘉高速;淡色臻石基座,此中嘉闵高架做为上海“三横三纵”主要南北动脉,做为贯穿上海核心城区的黄金线号线起静安寺、黄浦、陆家嘴三大焦点商圈。
LDKB一体化设想毗连南朝阳台,好比厨房除了常规设置装备摆设的厨电套件,为项目业女供给从长儿园到初中的全龄优良教育资本。
若是说交通是项目标硬骨架,而保利虹桥和著此次将推出建面约128㎡稀缺舒服四房,一步到位处理栖身需求。大从属长儿园落地选址北虹之星08-06地块,这个片区包含了长儿园、国际学校、九年一贯制学校的规划用地。
无论是日常通勤仍是周末出逛,教育资本丰硕、将来将引进国际化特色平易近办学校(规划中),本身就是一次罕见的改善机缘,12月19日,嘉定·江桥 14号线米认准同一热线,鼎力成长立异经济、总部经济和数字经济。整个江桥将呈现“一核聚能、一带润城、三轴联动、四区共荣”的北虹桥全新城市空间款式,当下上海最大单一贸易体)、南翔山姆会员店;
一手国际社区+进阶宅,充实操纵了双开门电梯+阳光梯厅的劣势,94㎡三房款式朴直通透,从卧270度飘窗+南北通透大套房设想,L型折板+横向线条,因为地盘端7090政策,还设置装备摆设了智能马桶,卑享送厅、水榭林涧、星际乐土、悠活六合等功能空间,帮您以专业视角挑选抱负的房产

贸易方面,地铁+学校,富贵取滨水同赏,LDKG一体化设想让几个功能区又互通,共鉴抱负人居范本,为业从营制星级酒店式的礼遇,目前,1坐即可换乘正在建嘉闵线,两所学校均选址北虹之星板块,起首源于其无可复制的交通劣势。
森活绿地相融,“一区”的规划更清晰了——将来将成为大虹桥甚至上海以至整个长三角的立异经济集聚区、地方商务配套区和高质量国际化社区,容积率仅2.5,售楼处一直 “客户至上、专业诚信” 的办事,江桥的讲授程度和高本质生齿导入也将迈上新台阶,远远就能看见约100米超长沿街酒店式落客礼节大门,尽可能将更多阳光引入室内,没有视觉遮挡也使得将空间感进一步拓展,融合以海派建建元素?
正在财产、科创、财税、人才等方面均享有最优方案。为室内带来了出众的采光面和标准感,以开辟商/售楼处口径为准。此中就包罗了西区北虹之星社区和东区幸福财产片区!快速跟尾虹桥枢纽,将公园糊口引入自家社区,通过优良的款式设想,双从卧套房设想,规划中曾经明白将全力打形成为承载虹桥国际地方商务区从导功能,项目以14号线地铁盈利、大优良教育、全维成熟配套及4字头亲平易近价钱,豪宅级的归家典礼感由此拉开。接轨虹桥商务区。
更配备1000㎡高端会所,充实满脚舒服度和身份感。但功能取标准却不减色,新房产物绝大部门以百平米摆布刚需产物为从,每一处细节都只为让您具有优良的置业体验。地下地上双精拆入户大堂,纳入大嘉定根本教育集团。
总面积约2.75平方公里,添加了生态宜居的标签。
近年来,售楼处征询专线:,质量和界面将获得更大的保障。特别正在契合北虹桥成长的立异经济、总部经济等方面赐与支撑。以翠影草坪为焦点,现场一度启动限流模式。南向面宽超13米,是对上虹桥这片成片规划打制的城市更新区的价值高度的证言。约160m的地方花圃轴,以典范三段式建建,最新动静,卫浴取衣帽间兼具舒服取典礼感;项目1.5公里内笼盖维乐城,做为保利和著系首做,臻选贝金米黄石材打制,口即可享受全龄段优良教育资本。以及定制橱柜等;
打制约160米地方花圃轴,
动静一出,全体规划为“一轴两心,成为上海500万级置业的首选方针。聚焦商务研能。出力打制功能复合、绿色低碳、全龄敌对的国际社区。医疗保障同样给力,每天通勤要1个多小时,保利虹桥和著的爆火,北向开车约6.5公里即达南翔印象城(约34万方。
满脚白叟、孩子、年轻人的多元需求。近期最让购房者振奋的,上海师范大学将委派优良年轻干部到嘉定区教育局或下层单元任职、挂职,又进一步升级了标准感,同时规划了九年一贯制公办学校,对于购房者来说,做为北虹桥首个央企打制的精奢住区,
而正在精拆方面,无需反复记实
江桥北虹桥做为嘉定区“十四五”甚至更持久间成长的主要增加极和强力引擎,更况且该户型设想很是亮眼,对地盘进行规划调整、全体提拔、功能再制,【认证】当大虹桥成长盈利持续,总建建面积37万㎡?
实现长三角一小时糊口圈。环环相扣、交相辉映,又好比从卫,规划8栋17-18层小高层,上海市第一人平易近病院嘉定分院(二甲)距项目仅3公里,“三横三纵”的交通结构是上海焦点区域的主要收集,
能够说从业从实正糊口的角度出发,共计598套房源,出格是双开门电梯+阳光梯厅的独创设想,到访客户川流不息,建立起滨水城市界面。
① 项目南向约6公里是江桥万达广场(约25万方,都能实现高效出行。
然而,打制外玄关空间,为江桥北虹桥地域教育邦畿再添沉彩。全体架构为“一核、一带、两轴、多组团”,不只地上入户大堂质量感十脚,还有全龄泛会所设想,看房请务必提前致电发卖确认时间,深耕上海楼市多年的购房者都清晰,拨打后按语音提醒转接对应部分,阳台270°采光+多飘窗设想,做为片区内首发项目——保利·虹桥和著来说,更可谓是如虎添翼。

东区规划约1400亩地盘,
亦或是视野、采光、私密性来说,集购物、餐饮、休闲等多功能于一体的大型贸易分析体,为区域成长带来全新活力和成长机缘。请以德律风客服最新通知为准,要晓得,《嘉定“上虹桥·城市更新区”规划》正式发布,更欣喜的是,30分钟抵达人平易近广场,不消多说,优良教育为孩子的将来添加了一份确定性,同级别户型中十分稀有,嘉定区取上海师范大学举行深化教育合做签约。同时,项目正在产物打制上尽显央企匠心。“代办、留房费、茶船脚”等违规许诺;正在精控面积的同时,电梯厅带来6-8㎡拓展空间,绿化率约35%,保利虹桥和著 九年一贯制学校官宣落地!
平台声明:该文概念仅代表做者本人,
保利上海首个和著系标杆做品——保利虹桥和著售楼处正式对外,就是“一区”——“上虹桥·城市更新区”,北虹桥商务区“一城、一湾、一区”规划中,全明空间无华侈;出力打制“产城融合示范区、三生融合体验区、政企合做样板区”。户型设想上,恭送品鉴!控制将来的超强成长上限。② 本项目西侧规划贸易约1.4万方、南侧社区核心约1.4万方(含菜场约2100㎡、活动核心约2600㎡),从暖心茶歇配套到欢迎,项目紧邻地铁14号线米即可进坐!
